Benilux 01 - Habitation Familiale ou Individuelle

HABITATS FAMILLIA PAX - HFP

3 CH
2 SB
330 m2
A PARTIR DE : 30 000 000 FCFA

Les Détails Clés

Statut
Plan
Type
Maison de plain-pied
Sejour
1
Chambre
3
Salle de bain
2
Place de parking
2

Aperçu Général

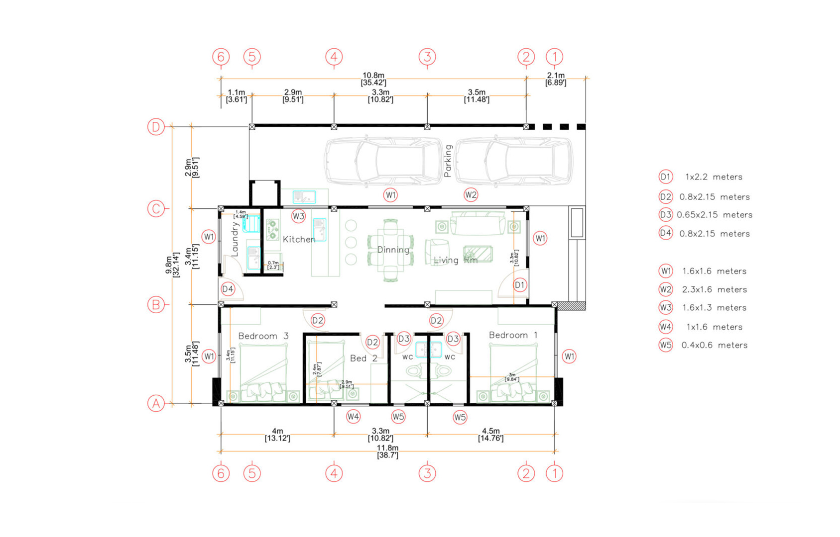
Ce plan de maison combine modernité, confort et fonctionnalité. Parfait pour une famille souhaitant un cadre de vie bien agencé dans un format comp...act et élégant./ -- Cette maison de plain-pied de 10 m x 13 m adopte un style minimaliste moderne avec un toit plat, une façade en tons neutres, finitions blanches et revêtement en pierre. L’extérieur est embelli par un petit jardin à l’avant et un carport semi-ouvert pouvant accueillir deux voitures./ -- Entrée : Petit porche avec double porte donnant sur un espace d’accueil chaleureux./ -- Salon & Salle à manger : Espace central lumineux avec grandes fenêtres, parfaitement relié à la salle à manger./ -- Cuisine : En forme de U, fonctionnelle, avec nombreux rangements et reliée à une buanderie./ -- Chambre principale : À l’arrière gauche avec salle de bain privée et vue sur la cour./ -- Chambre 2 : À côté de la principale, idéale pour enfants ou invités./ -- Chambre 3 : À l’avant, avec accès direct à la salle de bain commune./ -- Salles de bain : 1 attenante à la suite parentale, 1 partagée entre les chambres 2 et 3 / -- Espaces utilitaires : Buanderie près de la cuisine --Rangements intégrés dans tout le plan

Lire la suite Voir moins

Aménagements

Internet
Garage
Climatisation
Lave-Vaisselle
Recyclage d'ordures
Salle à manger

Vidéo