Benilux 04 - Habitation Familiale ou Individuelle

HABITATS FAMILLIA PAX - HFP

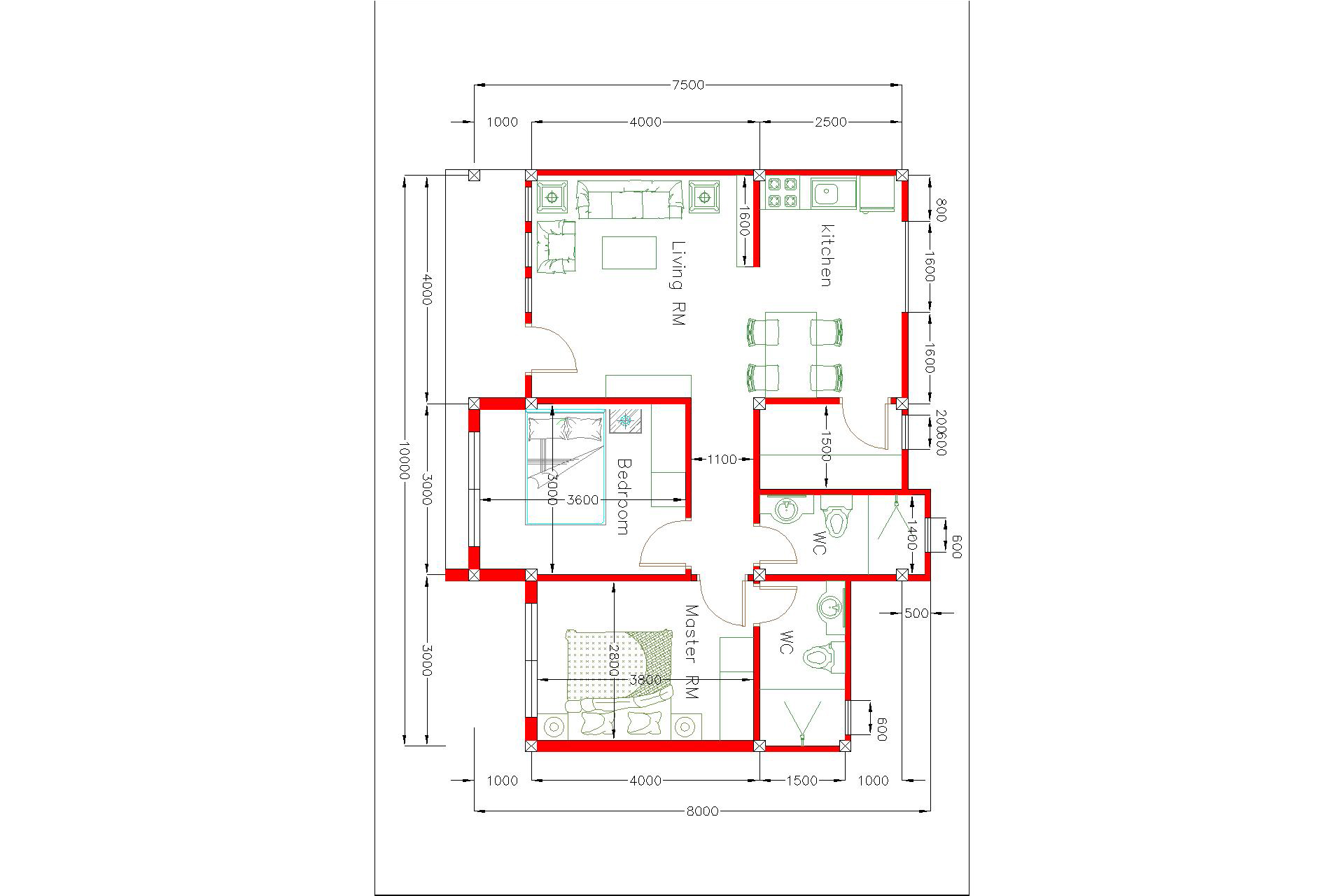
2 CH
2 SB
320 m2
A PARTIR DE : 35 000 000 FCFA

Les Détails Clés

Statut
Plan
Type
Maison de plain-pied
Sejour
1
Chambre
2
Salle de bain
2
Place de parking
1

Aperçu Général

Maison de 10 × 8 avec 2 chambres/ -- Parking et Jardin/ --- Salon, -- Salle à manger/ -- Cuisine/ -- 2 Chambres à coucher/, -- 2 Salles de bains --... Buanderie

Lire la suite Voir moins

Aménagements

Internet
Garage
Climatisation
Lave-Vaisselle
Recyclage d'ordures
Cuisine & Salle à manger

Vidéo